信阳网

 找回密码
 注册
查看: 879|回复: 0

信阳118平的原木风三房,优雅舒适,羡慕这种书房设计

[复制链接]
发表于 2020-5-6 16:40:23 | 显示全部楼层 |阅读模式 | 来自河南
  今天分享的是信阳一套建筑面积118平米的原木简约风三居室案例,设计师在整个房子内大面积的运用木元素,搭配白色、灰色的基调,来打造一个轻松、悠闲的家。屋主在装修和软装、家电的布置上总共花费了32万,装完之后也说很值得。
微信图片_20200506163728.jpg
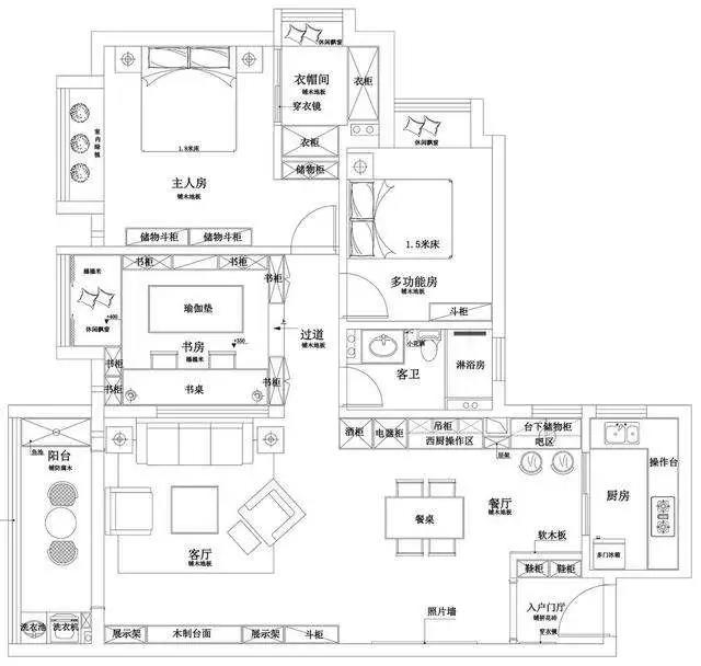
  平面布置图
微信图片_20200506163749.jpg
  入户的玄关走廊空间不大,摆放一个穿衣镜可以有效扩容空间视觉感。走过玄关就到了餐厅空间,白色的墙面上摆放的挂画在轨道灯的衬托下,显得非常好看。
微信图片_20200506163752.jpg
  餐厅的侧方是到顶的餐边柜,柜内嵌入了一些厨房电器,中间也做了留空的设计,可以作为西厨使用。餐厅和厨房之间也有一个小吧台空间,增添情调感。
微信图片_20200506163755.jpg
  厨房内部做了L型的橱柜,这样的布局更符合厨房的动线设计。墙面和地面铺设灰色的瓷砖,搭配木色的橱柜和吊柜,显得自然轻松。
微信图片_20200506163758.jpg
  在餐厅的另一侧就是客厅空间,沙发的后方就是书房空间,两者之间的墙体留出一个窗户,开放式的布局让客厅和书房显得更加宽敞。
微信图片_20200506163801.jpg
  电视背景墙上用柜子来代替造型,把电视嵌入柜子当中,封闭式的柜子和开放式的隔板结合起来,满足不同情况的收纳和使用需求。
微信图片_20200506163805.jpg
  客厅外的阳台被改成了洗衣房,通体铺设了木纹砖显得更有质感。齐家小菜觉得可以把窗帘放在阳台处,这样可以避免洗衣机被暴晒。
微信图片_20200506163808.jpg
  书房是个全屋榻榻米的设计,在长书桌的下方留出一部分的放脚的空间,两侧的柜子搭配榻榻米本身的收纳空间,非常实用。
微信图片_20200506163811.jpg
  主卧室的床头背景墙刷成了蓝色,搭配浅灰色的床品和窗帘,再加上木地板和木质家具,给人一种清新而又自然的感觉。
微信图片_20200506163814.jpg
  卫生间内干湿分离,浴室柜做了悬空的款式,方便清理底部的死角空间,通体以灰色为主的卫生间搭配木质与白色的卫具,显得简洁而又大方。

您需要登录后才可以回帖 登录 | 注册

本版积分规则

QQ|Archiver|小黑屋|信阳网 ( 豫ICP备11020369号-2

违法不良信息举报中心   河南省互联网违法和不良信息举报中心

豫公网安备 41159002000073号

GMT+8, 2026-2-11 13:16 , Processed in 1.258703 second(s), 25 queries .

Powered by xywcms! X3.4

© 2001-2013 信阳中和文化传播有限公司.

快速回复 返回顶部 返回列表