信阳网

 找回密码
 注册
查看: 1604|回复: 0

信阳南湾业主107㎡北欧风三居室,硬装简单,软装唯美

[复制链接]
发表于 2020-4-27 09:37:59 | 显示全部楼层 |阅读模式 | 来自河南
  今天分享的是一套信阳业主的107北欧风三居室案例,房子位于南湾,简单的硬装基础上加入了温馨的原木风家具和一些跳跃的色彩,通过唯美的软装来展现出一种清新文艺的感觉,让人羡慕不已。
微信图片_20200427093600.jpg
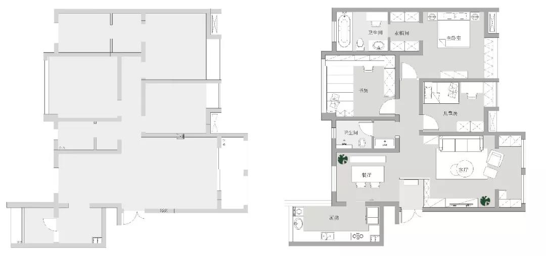
  平面布置图
微信图片_20200427093604.jpg
  入户没有玄关走廊的户型,设计师在入户门的侧方做了到顶的鞋柜,搭配一个木栅栏隔断,营造出一个独立的玄关门厅。
微信图片_20200427093607.jpg
  玄关门厅的侧方就是餐厅空间,木地板搭配木质的餐桌椅,在白墙的衬托下显得格外的轻松、舒适。餐厅和厨房之间用谷仓门作为隔断。
微信图片_20200427093611.jpg
  厨房内部做了U型的橱柜布局,冰箱也被嵌入柜子当中,地面人字铺贴的木纹砖和木质的橱柜相互呼应,显得整个厨房都很有自然感。
微信图片_20200427093616.jpg
  客厅在玄关门厅的柜子后方,通体也是也木色与白色为主,客厅与阳台之间被打通,让整个客厅看起来宽敞了不少。
微信图片_20200427093619.jpg
  客厅的沙发选择了亮色系的,再加上沙发背景墙上的绿植装饰画,让客厅不会那么单调,多出了一丝文艺小清新的感觉。
微信图片_20200427093623.jpg
  主卧室的墙面刷成了淡淡的粉色,也和窗帘起到呼应的效果,飘窗上方的抽屉柜和斗柜、床头柜集合起来,满足卧室的收纳需求。
微信图片_20200427093629.jpg
  主卧与主卫之间的走廊是被设计成了衣帽间,左右两侧做上到顶的柜子,卫生间内部摆放一个浴缸,也方便屋主有着不同的淋浴需求。
微信图片_20200427093632.jpg
  书房内部是做了榻榻米床组合衣柜、书桌的设计,书桌上方开放式的柜子也方便摆放书籍和玩偶、装饰品,原木风为主的设计显得格外的自然、简洁。
微信图片_20200427093638.jpg
  公用卫生间的洗手台被放在了门外,也是方便了屋主一家日常使用。干区与湿区都铺贴了彩色的六边砖,搭配白色小砖显得更为文艺清新。

您需要登录后才可以回帖 登录 | 注册

本版积分规则

QQ|Archiver|小黑屋|信阳网 ( 豫ICP备11020369号-2

违法不良信息举报中心   河南省互联网违法和不良信息举报中心

豫公网安备 41159002000073号

GMT+8, 2026-2-11 17:24 , Processed in 1.503663 second(s), 27 queries .

Powered by xywcms! X3.4

© 2001-2013 信阳中和文化传播有限公司.

快速回复 返回顶部 返回列表